400-115-0085
手機:186 5510 4339
總機:0551-63455948
郵箱:bekcoo@163.com
地址:合肥市蜀山區望江西路88號

酒窖合適的溫度:8~16℃,相對濕度:60~70%;最重要的是溫濕度要穩定!穩定!穩定!歡迎查閱鉑克酒窖恒溫恒濕機案例
金螳螂成立于1993年,總部設在中國蘇州,經過二十多年的發展,形成了以"裝飾產業為主體、電子商務與科技產業為兩翼"的現代化企業集團,集團擁有海內外控股子公司100余家,公司員工20000多人,是綠色、環保、健康的公共與家庭裝飾產業的集團。
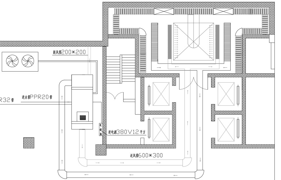
項目概況:
建筑面積約52㎡,高3.3m;溫度要求14∼17±1℃,相對濕度60∼70±5%,酒窖內送風方式采用頂送風頂回風,選用酒窖恒溫恒濕機型號BEKD-20WS,至今已連續穩定運行36個月。
重要提示:為了降低酒窖的投入成本和運行費用,有的酒窖會采用空調+除濕機或加濕器相結合的方法來調控酒窖內的溫濕度,可結果往往是賠了夫人又折兵,后悔不已!為此,現在越來越多的恒溫恒濕酒窖根據其實際情況和需求都會配置品牌的酒窖恒溫恒濕機來對溫度、濕度進行精確的控制,達到恒溫恒濕的環境!
Copyright ? 2020 合肥鉑克環境設備有限公司版權所有。
鉑克環境是專業的除濕機設備廠家,生產和銷售轉輪除濕機,工業除濕機、恒溫恒濕機等除濕設備,歡迎來電洽談!
Powered by EyouCms